Silver Lake Residence

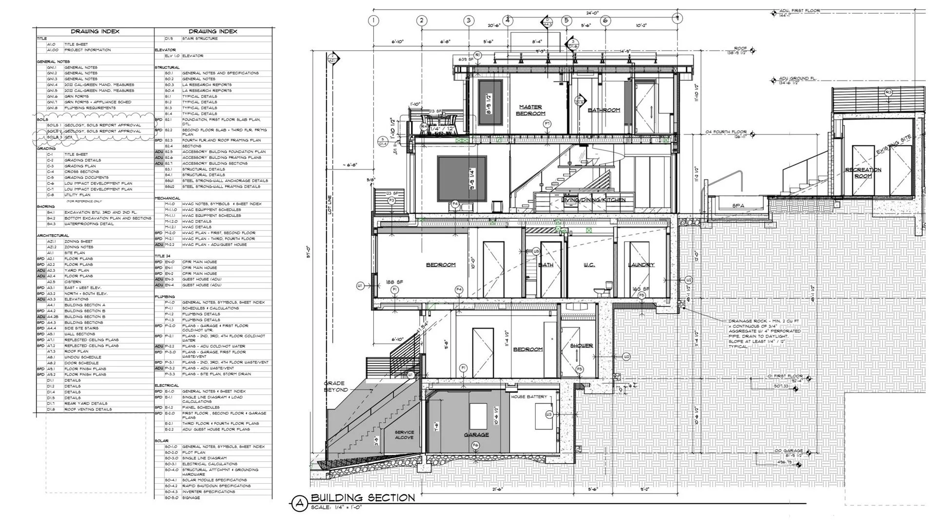
This four-story Silver Lake hillside residence is designed as a compact, vertically organized home on a constrained Los Angeles hillside lot. A rear accessory dwelling unit (ADU) is embedded into the slope, preserving street-facing privacy while maximizing use of the site’s grade.

Primary living spaces open to terraces and large-format glazing, supporting indoor-outdoor living and capturing light and views across the hillsides and San Gabriel Mountains.

A restrained palette of dark vertical cladding, warm wood soffits, and minimal steel detailing reinforces the project’s clarity. Repetition of aligned openings and structural bays creates a disciplined and structurally efficient façade, while recessed outdoor spaces provide layered, terraced hillside living.